• Kostenloser Versand ab 99€
  • Über 300.000 Artikel
  • Profiqualität

DIN 417

Unter der DIN 417 findet man Gewindestifte mit Zapfen und Schlitz. Gewindestifte sind Schrauben ohne Kopf. Sie werden umgangssprachlich auch gerne als Madenschrauben, seltener als Wurmschrauben bezeichnet. Durch den englischen Namen wird das Aussehen des Gewindestifts auf den Punkt gebracht: headless screw, also kopflose Schraube. Stifte DIN 417 haben ein durchgehendes Gewinde, einen Zapfen und sind an einem Ende mit einem Schlitzantrieb versehen. Über die gesamte Länge des Gewindestifts erstreckt sich das Schraubgewinde.

Einsatzgebiete

Immer wenn etwas unauffällig fixiert werden soll, kommen Gewindestifte zum Einsatz. Sie lassen sich so tief in das Material hinein schrauben, dass sie vollständig darin verschwinden und nicht mehr zu sehen sind. Sie haben einen ausgezeichneten Achs- und Torosionswiderstand. Zum Beispiel werden sie häufig für die Montage von Türgriffen oder Wasserhähnen verwendet. Zudem werden sie auch oft genutzt, um Wellen zu befestigen und finden oft Anwendung im Modellbau, bei der Arretierung der Vierkantstifte bei Drückergarnituren oder bei Halterungen von Stahlseilen.



Artikel 1 - 3 von 3

Anwendung

Um den Gewindestift DIN 417 verschrauben zu können, muss in das Bauteil ein Loch vorgebohrt werden. In dieses Loch wird dann der Zapfen eingeschraubt. Auf diese Art kann sichergestellt werden, dass die Fixierung absolut verdrehsicher ist.

Materialien

Madenschrauben DIN 417 bieten wir Ihnen aus Stahl blank und aus Edelstahl an.

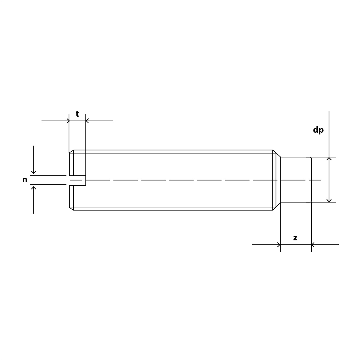
DIN 417 Skizze

DIN 417 Technische Daten
Maße dp z n t
M3 2 1,5 0,4 0,8
M4 2,5 2 0,6 0,96
M5 3,5 2,5 0,8 1,12
M6 4 3 1 1,28
M8 5,5 4 1,2 1,6
M10 7 5 1,6 2
M12 8,5 6 2 2,4
M16 12 7 2,5 2,8
Newsletter